Available: NOW
£495,000
Call our North Leeds and City Centre branch on 0113 237 0999
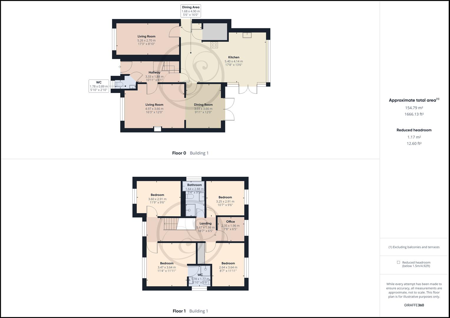
Stoneacre Properties are delighted to offer for sale a stunning five bedroom detached property set in the lovely village of Towton surrounded by countryside and pleasant walks. It has easy access to both Leeds and York and the M1 and A1. Leeds city centre is 15 minutes by car. There are excellent schools in the area both primary and secondary. This property briefly comprises a spacious lounge through diner, second reception/tv room, downstairs w/c, modern kitchen with kitchen island/breakfast bar with access on to the model rear garden fitted with composite decking, artificial grass and water feature. To the first floor, master bedroom with fitted wardrobes and en-suite wet room, second double bedroom with fitted wardrobes, two further double bedrooms, fifth smaller single/office room and house bathroom with walk in shower and bath. Double driveway to the front of the property and garage.
Entrance - Entering the property you are welcomed into the entrance hallway which offers access the w/c lounge/diner and the kitchen.
W/C - Downstairs w/c comprises toilet and sink.
Lounge/Diner - Accessed via the hallway and kitchen is this well presented and open lounge/diner offering ample space for a formal seating area and a generous sized dining area with french doors out to the rear garden.
Kitchen - Modern and spacious kitchen comprises shaker style wall and base units and comprises integrated fridge/freezer dishwasher, range cooker and central island with breakfast bar seating all finished with solid worktops. The kitchen offers space for an informal dining area and access to the rear garden/decking, reception room 2 and utility/storage cupboard.
Reception Room 2 - Large second reception room is ideal for a games room or playroom.
Primary Bedroom - Large double bedroom with fitted storage and dressing area and en-suite bathroom.
En-Suite - Comprises shower, toilet and sink.
Bedroom 2 - Second spacious double with fitted storage.
Bedroom 3 - Third large double bedroom with fitted storage.
Bedroom 4 - Final double bedroom with fitted storage.
Bedroom 5 - Single bedroom also ideal for a home office.
Bathroom - Well presented 4-piece bathroom with bath, walk in shower, toilet and sink.
External - Externally, the property boasts a spacious front driveway and single detached garage with side access to the rear. To the rear is a low maintenance garden with two raised decked areas and AstroTurf lawn.
To arrange a viewing, please complete this short form and we will contact you shortly.
©2025 Stoneacre Properties - Estate and Letting Agent in Leeds specialising in property for sale and to let.
Privacy Policy | Terms & Conditions | Cookies Policy | Complaints | Fees | CMP Certificate