Available: NOW
Offers Over
£795,000
Call our North Leeds and City Centre branch on 0113 237 0999
*** BRAND NEW BUILD - READY TO MOVE IN *** 4-BED DETACHED ON SHADWELL LANE *** SPANNING 1725 SQFT*** Stoneacre Properties are delighted to present to market this exceptional stone built property. This luxury property is an ideal family house sitting on nearly 1/5 acre plot and boasting 4 spacious bedrooms a primary with en-suite, an open plan kitchen/diner and a large lounge which leads seamlessly to the landscaped rear garden.
Constructed out of natural quarry stone this attractive property is striking in appearance and boasts a slate roof, black aluminium doors and windows throughout and is complete with underfloor heating throughout the entirety of the ground floor and a wired alarm system.
The property comes with a 6 year build warranty and there are elements of customisation allowed subject to where the build is up to, so if this property is for you, contact Stoneacre Properties!
Location - Shadwell Lane is a highly sought after residential addresses in North Leeds. The property is ideally situated to provide easy access to a diverse range of local amenities and denominations of schools including the acclaimed 'Grammar School at Leeds'. Roundhay Park, one of the biggest city parks in Europe, is within close proximity and a short drive will lead you to Harewood House and the spa town of Harrogate being only a relatively short drive away (11 miles approximately). Nearby sporting facilities include the David Lloyd Centre and championship golf courses are quite literally on the doorstep. Leeds Bradford Airport is distanced approximately 20 minutes away as is Leeds City Centre with multiple transport connections.
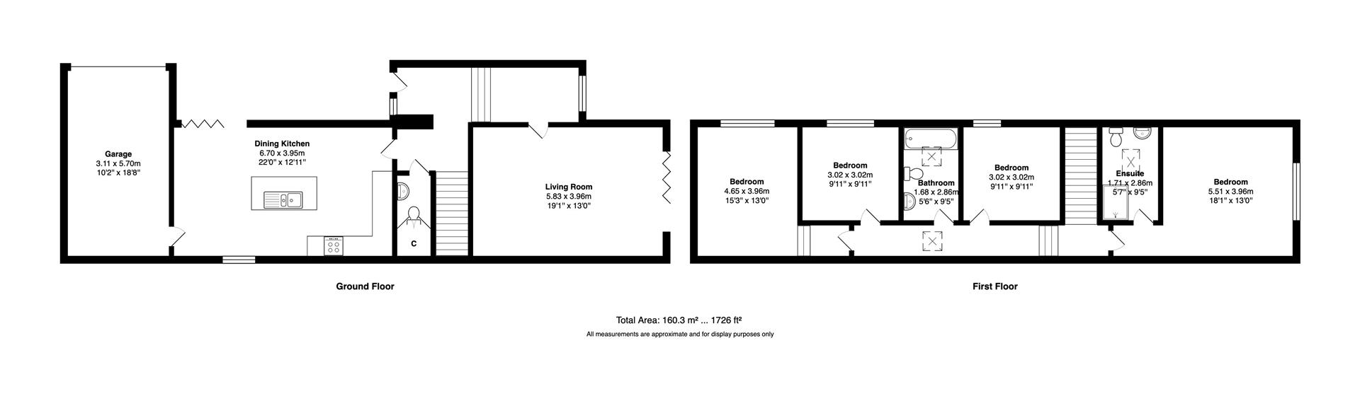
Internal Accomodation - Entering the property you are welcomed into a grand entrance hallway with double height ceilings and feature double height glazing which overlooks the rear garden and floods the hallway with natural light. Stairs lead down to the living which features bifolding doors to the rear patio and garden. Guest w/c accessed off the hallway. Modern open plan kitchen/diner with bifolding doors leading to the patio at the side of the property. Kitchen/diner boasts a fully fitted designer kitchen with integrated appliances and quartz worktops with a central island. There is scope to choose the kitchen design you want from a range the kitchen designer offers. The ground floor is complete with integral garage with electric door that boasts a built in utility space to the rear (excluding appliances).
To the first floor there are four spacious double bedrooms the primary bedroom complete with vaulted ceilings and en-suite bathroom, and the main house bathroom.
External - Mature trees run the perimeter of the property offering privacy. The landscaped garden features a wrap around patio from the bifolding doors of the kitchen/diner round to the bifolding doors of the lounge. The rest of the garden is laid to lawn. Parking is offered in front of the garage as well as to the side of the property for up to two cars. The property will boast external feature lighting and electric car charger.
Viewings - Whilst viewings are warmly welcomed, they are strictly by prior appointment with Stoneacre Properties.
To arrange a viewing, please complete this short form and we will contact you shortly.
©2025 Stoneacre Properties - Estate and Letting Agent in Leeds specialising in property for sale and to let.
Privacy Policy | Terms & Conditions | Cookies Policy | Complaints | Fees | CMP Certificate