Available: NOW
£595,000
Call our North Leeds and City Centre branch on 0113 237 0999
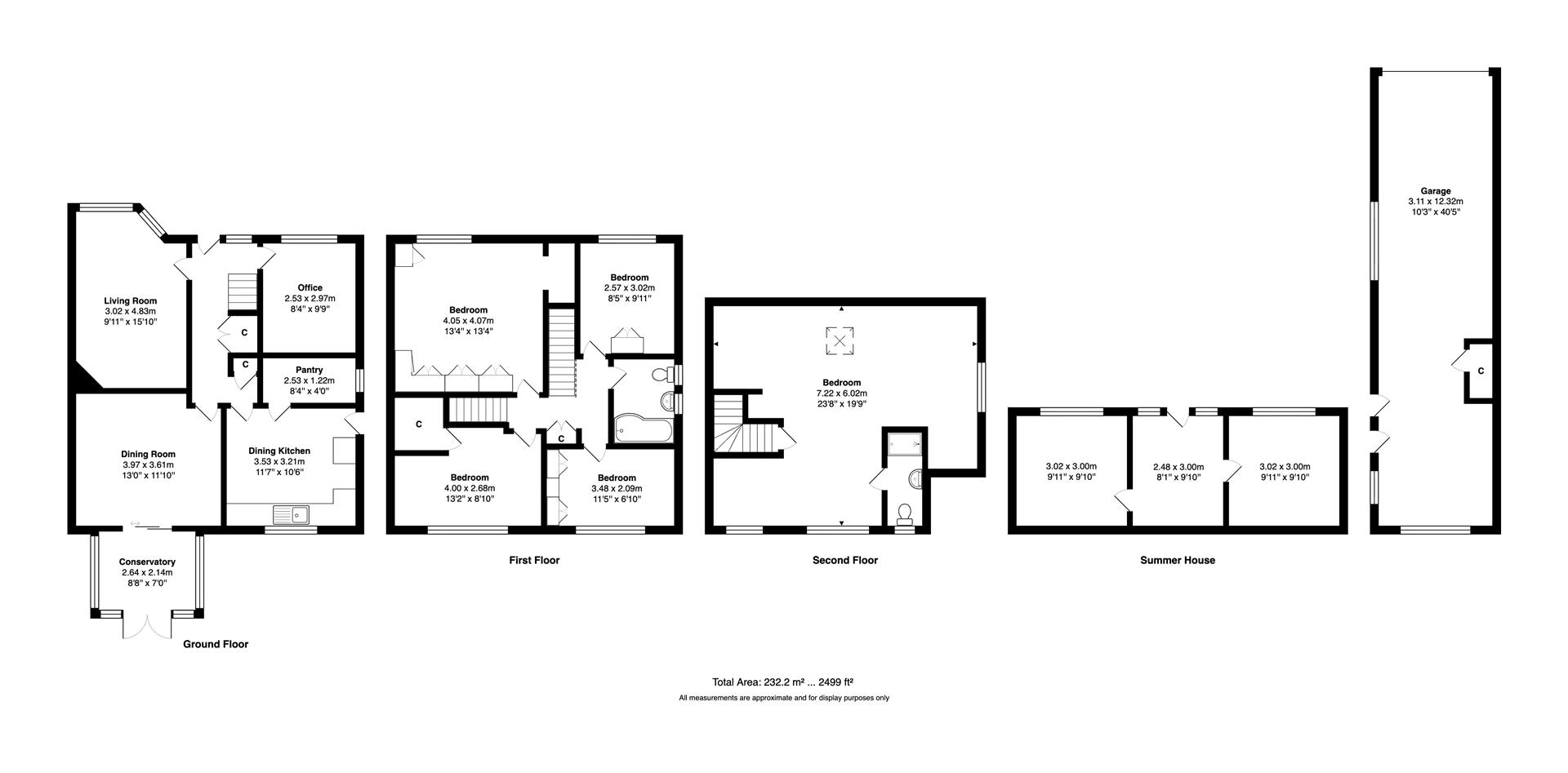
Positioned on the highly sought after Primley Park Grove, Leeds, this superb semi-detached home offers an exceptional living experience for families and professionals alike. Boasting five well-proportioned bedrooms, including four doubles, this property is designed to accommodate both comfort and functionality. The primary bedroom features an en suite bathroom.
The home is further enhanced by three spacious reception rooms, which include a dedicated office space, perfect for those who work from home or require a quiet area for study. The modern house bathroom is stylishly appointed, ensuring convenience for all residents.
Outside, the property impresses with a large rear garden, ideal for outdoor entertaining or simply enjoying the fresh air. The extensive detached garage offers ample storage or potential for a workshop, while the charming brick-built summer house at the rear of the garden provides a delightful space for leisure or hobbies. To the front of the property is a large driveway.
This semi-detached house combines modern living with practical features, making it an ideal choice for anyone seeking a spacious and versatile family home in a sought-after location. Don't miss the opportunity to make this wonderful property your own.
Entrance - Entering the property you are welcomed into the hallway which offers access to the lounge, office, dining room and kitchen.
Living Room - Spacious formal living room offers plenty of space for seating and the large windows to the front elevation allow plenty of natural light in.
Office - A dedicated office space that could be repurposed as a playroom, games room, or music room.
Dining Room - Spacious dining room is well positioned giving easy access to and from the kitchen and leads through to the conservatory.
Conservatory - Additional sitting room that offers panoramic views over the rear garden. French doors lead out to the garden.
Kitchen - Large kitchen with space for a table. The kitchen is made up of wall and base units with a large range cooker with gas hob, space and plumbing for washing machine, and a large pantry cupboard which houses the freestanding fridge/freezer. Side door leads out to the rear garden.
Bedroom 1 - Situated to the second floor of the property with an en-suite bathroom.
En-Suite - Comprising shower, toilet and sink.
Bedroom 2 - Large double bedroom with fitted wardrobes that run the perimeter of the room.
Bedroom 3 - Third double bedroom with under stairs storage and space for wardrobes. Overlooks the rear garden.
Bedroom 4 - Fourth double bedroom.
Bedroom 5 - Fifth single bedroom with built in wardrobes.
Bathroom - Modern tiled bathroom with shower over p-shaped bath, toilet and floating vanity sink.
External - To the front is a spacious driveway that runs down the side of the property to the detached garage. To the rear is a large garden laid to lawn, with a patio area to the far end of the garden where you will also find the brick built summer house.
Garage - A spacious detached garage providing exceptional storage capacity and a wide range of versatile uses. To the rear of the garage there are toilet facilities.
Summer House - Positioned to the rear of the garden this brick built summer house is accessed via uPVC double glazed glass doors and has three separate rooms when inside. This space offers so many uses and STP could be used as a guest house.
To arrange a viewing, please complete this short form and we will contact you shortly.
©2026 Stoneacre Properties - Estate and Letting Agent in Leeds specialising in property for sale and to let.
Privacy Policy | Terms & Conditions | Cookies Policy | Complaints | Fees | CMP Certificate