Available: NOW
£435,000
Call our North Leeds and City Centre branch on 0113 237 0999
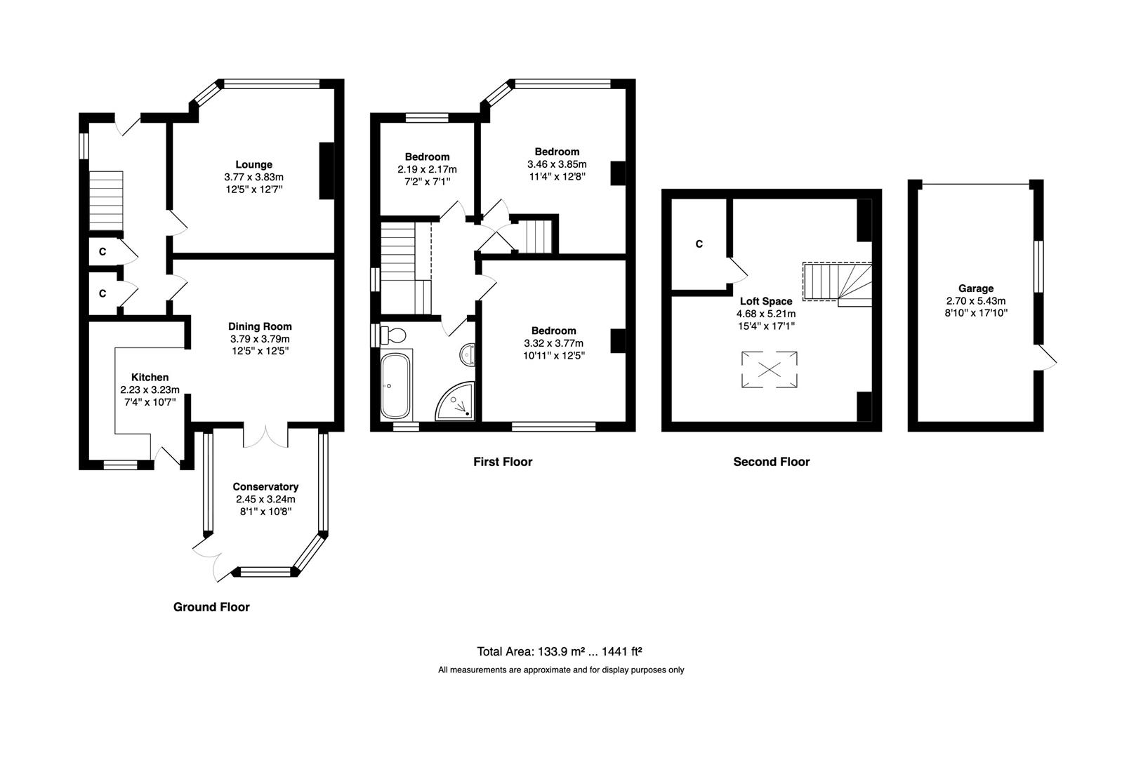
Situated on the sought after Spen Lane, Leeds, this beautifully presented semi-detached house offers a perfect blend of modern living and traditional charm. With three spacious bedrooms and a fully accessible loft space, this home is ideal for families seeking comfort and style.
Upon entering, you are greeted by a large hallway that leads to two inviting reception rooms. The formal lounge boasts a feature fireplace, creating a warm and welcoming atmosphere for relaxation or entertaining guests. The heart of the home is undoubtedly the modern open-plan kitchen, living, and dining area, which flows seamlessly into a delightful sunroom at the rear. This space is perfect for enjoying family meals or hosting gatherings, with ample natural light enhancing the inviting ambiance.
The property benefits from a fully accessible loft space, providing additional versatility. The well-appointed bathroom caters to the needs of the household, ensuring convenience for all.
Outside, the large driveway offers ample parking and leads to a detached garage, providing further storage options. The private south-facing rear garden is a true gem, featuring a well-maintained lawn and a patio area, perfect for outdoor dining or simply enjoying the sunshine.
This semi-detached house on Spen Lane is not just a home; it is a lifestyle choice, offering a perfect setting for family life in a sought-after location. With its modern amenities and charming features, and proximity to local amenities and transport links, this property is sure to impress. Do not miss the opportunity to make this wonderful house your new home.
Entrance - Entering the property you are welcomed into the spacious hallway which offers access to the lounge and to the kitchen/living/diner. There is a very useful under stairs utility cupboard housing the washing machine and dryer, as well as an under stairs storage cupboard.
Lounge - Large formal lounge benefits from bay window to the front elevation and a feature fireplace. The room offers ample space for seating.
Kitchen/Diner - Positioned to the rear of the property this wonderful, bright and airy living space is ideal for hosting and socialising with a formal dining space that is open to the modern fitted kitchen. The living space also open seamlessly to the sunroom which is currently used as a play room. This open plan living space is extremely versatile and can be set up to meet everyone's individual requirements. The modern kitchen comprises integrated oven, gas hob with extractor above, dishwasher, space for fridge/freezer, and ample storage. Rear door leads out to the garden.
Sunroom - A further sitting room offers panoramic views across the rear garden with French doors leading out to the garden.
Bedroom 1 - Large double bedroom is laid to carpet with space for wardrobes, drawers and dressing table, overlooks the rear garden.
Bedroom 2 - Second spacious double bedroom.
Bedroom 3 - Third single bedroom, also ideal for a home office.
Bathroom - 4-piece tiled bathroom with walk in shower, bath, toilet and sink.
Loft - To the second floor is a fully accessible loft accessed via a staircase. The room is fully functional and is currently used as a bedroom. The room benefits from a large velux window and access to eves storage.
External - To the front of the property is a large driveway with parking for multiple cars. The driveway leads up to the detached garage. To the rear is a private and enclosed south facing garden primarily laid to lawn with a large patio seating. The garden is ideal for growing families. The garage can also be accessed via a side door from the rear garden.
Garage - This detached garage has been re-roofed with a new side door and main up and over door. It offers great storage.
To arrange a viewing, please complete this short form and we will contact you shortly.
©2026 Stoneacre Properties - Estate and Letting Agent in Leeds specialising in property for sale and to let.
Privacy Policy | Terms & Conditions | Cookies Policy | Complaints | Fees | CMP Certificate